
取材自然 回归纯粹本质东方美学,呈现出一种自然、健康、朴素的环境氛围。
忠实于材料的本性,强调其特质,摒弃华丽鲜艳的材料堆砌,
充分发挥了材料本来所特有的材质、肌理、色彩。
木、石、泥、藤、麻、丝,都以淳朴、自然的形象展现出特有的东方美学魅力。
以木构为主要材料的室内空间表现出通透、自然的东方禅宗美学特性。
简明的意匠,构造和表现的一致性,使自然、空间、材料相融合,诉说着人与自然的对话。


无形之美 东方美学传承
当代东方美学是一种有传承的生活方式,主张人与自然相处的极致之美。
取有形室内空间之美,营造无形之美的生活意境。把东方文化融入空间设计,即是将生活艺术化、时尚生活化。
把空间环境、菜品服务、都赋予美学元素和艺术生命,为每个场景寻求“形”之外“神”的表达。
传统和时尚、古典与现代,空间的真实与创造的空灵完美统一。



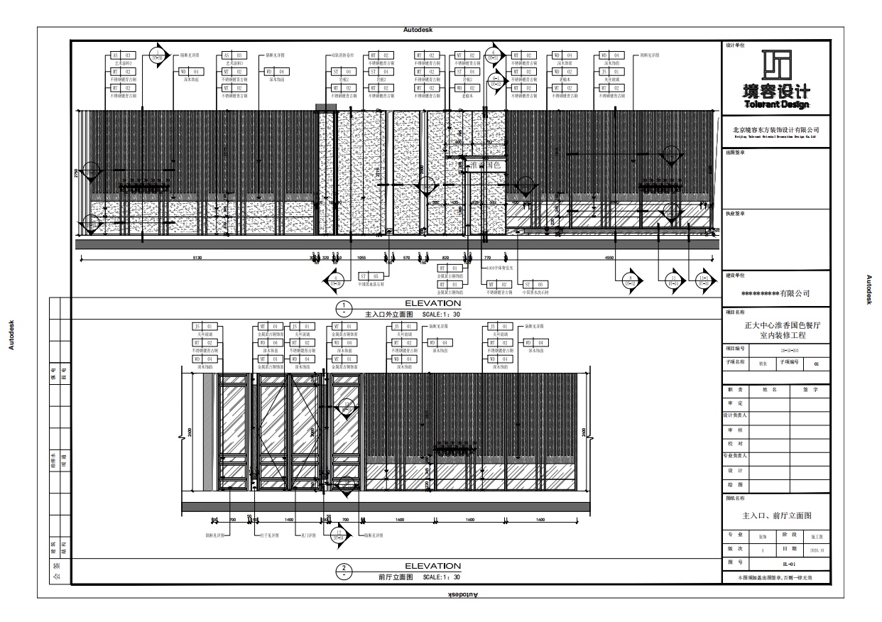
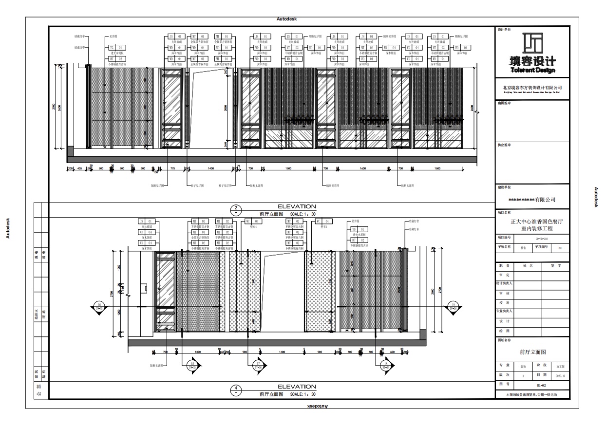
外观空间借鉴江南苏氏园林的精髓——对景、借景。
创造了从外观开始虚虚实实,若即若离的空间感受。
透过由内向外传递的音、色、味等讯息让客人不由自主的流连其中,深入其中。此乃“意境之美”。


前厅空间通过现代的透光水泥板材质和色彩光影上的斑驳变化
营造中国意境神韵的同时充满时尚未来感。
点点光斑以点带面,由季节变化带来灯光颜色变化,
写意表现宇宙中浩瀚星体,波澜壮阔。此乃“节令之美”。




散台空间呈现出一派文人宴乐的风雅景象,冲孔板斜坡屋顶以层叠效果中展示“千里江山”结合
顶部光晕色彩的变化赋予了新的时尚东方美学内涵。吧台由竹节这个传统的中国文化元素为灵感,
结合现代金属材质和灯光打造一个既时尚又不脱离中国传统神韵的酒吧空间。
疏离隔透的别样景致穿插着袁枚老人的古画境由心造,心物感应,是我们对空间的感悟方式。
悠然忘情,趣闲累远的东方文化,给了我们无限的灵感和自由想象的空间,神气索然。


包间空间都以传统的中式屋架结构顶面处理,空间由另一种中国传统乐器古筝的线条艺术为灵感,
在朴实的壁布墙面穿插青古铜金属线条,疏密结合,井然有序。
不经意还能欣赏到内凹在墙面凹龛内袁枚老人的古画中的妙龄女子。
既大气又清雅,既时尚又不失东方神韵。此乃“留白之美”。
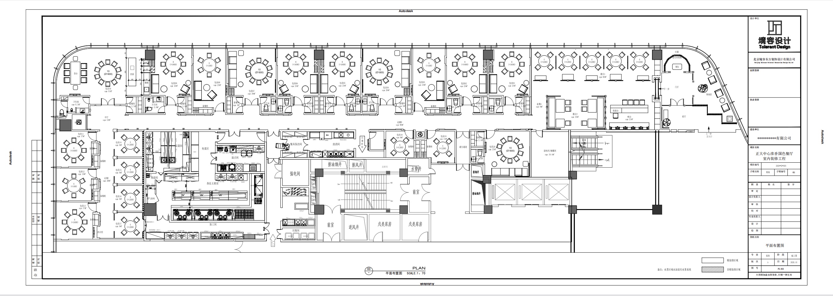
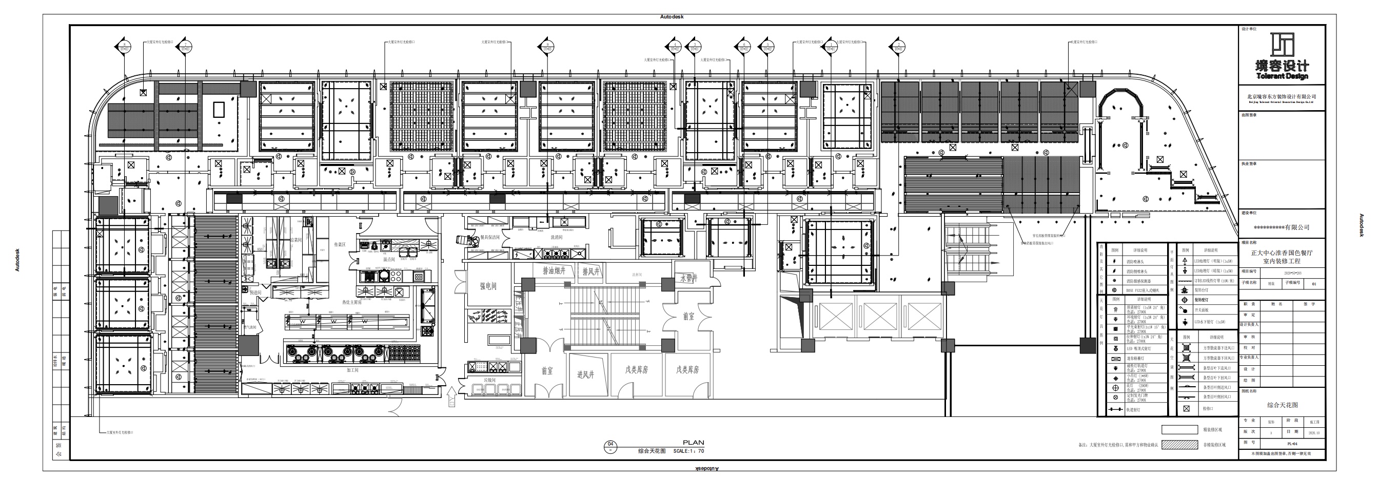
硬装介绍:本项目1100平米,位于北京市朝阳区CBD核心区正大中心。
餐厅分为前厅、酒吧、下午茶、散台、走道、17个包间以及观景阳台这几个区域。
项目充分将室外CBD核心区建筑群考虑到大部分重要区域内,提升就餐体验以及价值。
材料上多以质朴原生态的材质为主,局部烘托一些丰富的色彩,配合上个性的灯光,
既使空间古朴有韵味又不失时尚现代的气息。新的材质、旧的古韵、前卫的灯光完美融合。
主要材料有:布艺硬包、花岗岩火烧板、天然大理石、青古铜、木饰面、老榆木、藤席、PVC编织,
实木复合地板、丝麻玻璃、硅藻泥、金属冲孔板等。
陈设介绍:硬装部分多材质的拼接以及灯光的完美融合使原本已经具有完美CBD建筑群外景的餐厅足够丰富。
少而精的饰品穿插点缀空间中是本次陈设设计的主要方向。大多以古书、插花、陶罐为主。
质朴的陶罐具有沧桑的历史年代感结合偏东方古韵的禅意风为主要方向的插花。
四季更替插花色彩也会根据四季变化调整为应季的色彩。画品以袁枚老人及十三女弟子古画为主。
画品取其局部穿插空间内结合墙面浑然一体,现代前卫不失古韵,从而达到空间陈设古韵新作的完美融合统一。
平面图展示






项目名称:淮香国色
项目地点:北京市朝阳区光华路,正大中心
设计机构:北京境容东方装饰设计有限公司
竣工时间:2021年 1月30日






